SAVE on Quick Move-Ins!

Limited Time Savings on Select Homes
Ask About No Payments until September 2026

Preferred Lender promotion ends 05/29/2026.
Click here to find your new neighborhood!

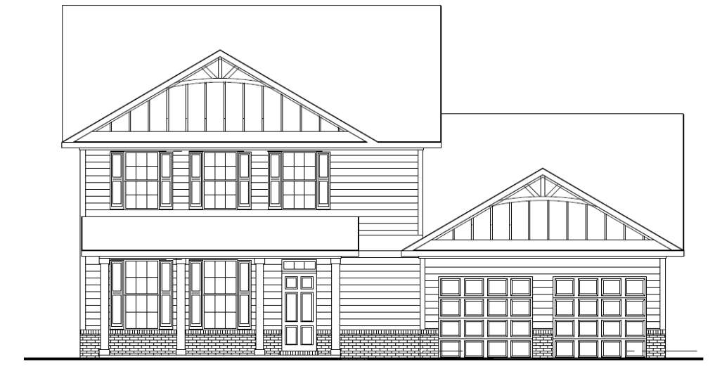
Newhaven Plan


4 Beds

2,977 Sq Ft

3 Baths


NEWHAVEN

Elevations

Plan Details

Have Questions? Get in touch!

We would love to show you more. Reach out to us by phone or email today and our on-site New Homes Specialist will be happy to help you and answer any questions you may have.

    I agree to be contacted by PBG Built Realty LLC via call, email, and text for real estate services. To opt-out, you can reply 'stop' at any time or reply 'help' for assistance. You can also click the unsubscribe link in the emails. Message and data rates may apply. Message frequency may vary. Privacy Policy